This property is for Negotiated Sale and comes from an updated list from the Philippine Deposit Insurance Corporation (PDIC), last retrieved on 2026-March-30. Details below.
Property details
- Property Code: 11165000000043
- TCT/TD/OCT: TCT No.: 198981
- Description: Residential – Vacant Lot
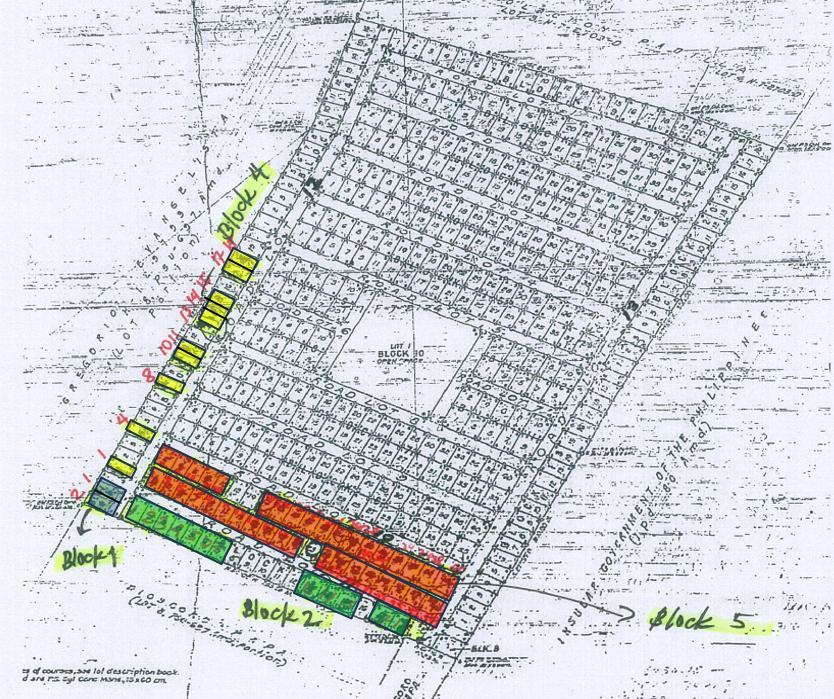
- Location: Lot 3, Blk. 5 Sitio Laan (C. C. Bernal – per tax declaration), Brgy. Macabud, Rodriguez, Rizal
- Area(sqm): 240.00
- Minimum Disposal Price: PHP 207,000.00
- Remarks: For Negotiated Sale
- Disclosures: 13, 17, m1 (See legend below)
Disclosures
13 – With unpaid taxes and/or dues
17 – Relocation survey is recommended
m1 – The property is subject to 12% Value-added tax (VAT). Payment for the account of the buyer
“Prices are subject to change and properties may be withdrawn from the list at any given time without prior notice. PDIC reserves the right to reject any or all offers and to accept the offer as may be considered most advantageous to PDIC/closed banks. The decision of the PDIC shall be final and binding. Misprints and other errors may occur. These are unintended and are not considered acts of misrepresentations or non-disclosure.”
View more pictures and other details (if available)
To view pictures and other details available for this property, you may view the original listing from the PDIC website through the following link:
Here are the complete guidelines for buying through negotiated sale from PDICs official website:
Guidelines in Buying Real Properties Thru Negotiated Sale
- Accomplish the PDIC Offer to Buy (OTB) form together with the Buyer information Sheet (BIS). The OTB and BIS may be downloaded for free in the PDIC website, www.pdic.gov.ph.
- If offer is done thru/referred by a Professional Regulations Commission (PRC) licensed Real Estate Broker (REB), the OTB shall be signed by the REB with the Clients conformity and shall be submitted together with:
- PRC Certificate of Registration as REB (certified true copy) and valid PRC Professional Identification card (ID) (photocopy),
- Valid government issued ID other than the PRC ID (e.g. SSS, Passport, Drivers License, Voters ID) (photocopy), and
- BIR Form 2303 (BIR Certificate of Registration of RE activities) or BIR Form 1701 (Income Tax Return)
Subject to the terms and conditions for entitlement to a commission.
- Make sure that all the required fields in the OTB & BIS are completely filled out and duly signed. The OTB & BIS may be sent thru any of the following modes:
- drop in a sealed envelope at the PDIC Offer Box located at the PDIC Public Assistance Center, Ground Floor, PDIC Chino Bldg., 2228 Chino Roces Avenue, Makati City 1231;
- mail to the ROPA Disposal Committee (RDC) thru its Secretariat, 5th Floor, PDIC Chino Bldg., 2228 Chino Roces Avenue, Makati City 1231;
- email scanned original OTB & BIS and send to the following email address: rdcsec@pdic.gov.ph.
- All offers will be opened and processed every Monday, 9:00 AM by the RDC Secretariat and transmitted to the Asset Management and Disposal Group (AMDG) the next working day (Tuesday). All offers will also be acknowledged by the RDC Secretariat.
- AMDG will evaluate the offers within fifteen (15) days to determine whether the offers are complying or non-complying based on the PDIC policy.
- Thereafter, the AMDG will inform you in writing of the result of its evaluation, or RDCs action concerning your offer.
- If offer is approved, payment must be made within fifteen (15) calendar days from receipt of the Notice of Award (NOA). In case of failure to pay on the due date, the approval shall be automatically cancelled.
- Payment may be made thru either of the following:
- the Cashier at the Treasury Deoartment (TD) located at the PDIC-PAC, Ground Floor, PDIC Chino Bldg., 2228 Chino Roces Avenue, Makati City 1231; or
- any PNB branch (for closed banks) using the Bills Payment Slip (see attached sample):
PNB Account No. : (leave blank)
Account/Merchants Name: PDIC BURL (name of closed bank)
Policy/Plan Reference No.: (to be provided by AMDG)
Policy/Planholders Name: (indicate the name of BUYER)
- Please provide a copy of the Official Receipt / duly validated PNB Bills Payment Slip to AMDG as soon as payment is made for confirmation.
- The Deed of Absolute Sale / Contract to Sell will be prepared within fifteen (15) days from confirmation of payment.
Source: PDIC Guidelines in buying real properties through negotiated sale
Want to get notified when this is updated? Subscribe for free updates!
Get new/updated foreclosed listings, auction schedules, property buying tips, and more, sent straight to your email inbox. It's free!
View complete list of PDIC foreclosed properties
To view the complete list of properties included in this update, you may visit the following page:
Disclaimer and Reminders
- All foreclosed properties are for sale on an “AS IS, WHERE IS” basis. Interested parties are reminded to conduct proper due diligence prior to the purchase of any foreclosed property.
- Availability, prices, and property status are subject to change without prior notice.
- Misprints should not be construed as misrepresentation of the property.
Last updated on 2026-March-30 with data from the original listing on PDIC’s website: Original Listing for Property Code: 11165000000043
